 
			 
				Ti presentiamo una porzione di villa libera su tre lati, immersa in un contesto tranquillo con una splendida vista sul lago. Questa residenza offre un ambiente accogliente e funzionale, perfetto per una famiglia che desidera vivere in armonia con la natura a pochi passi dal Parco del Lago Grande.
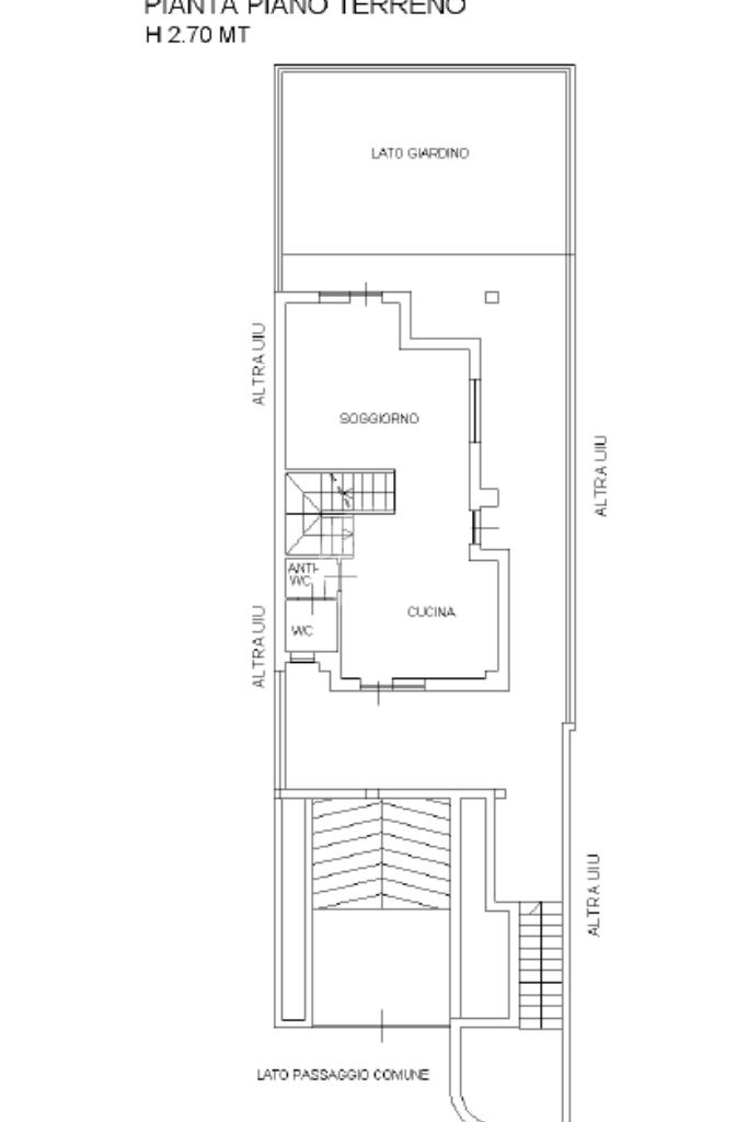
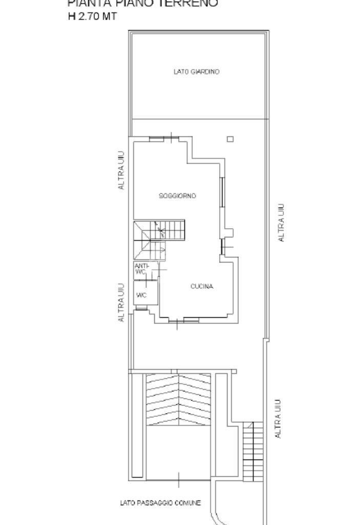
All'ingresso ti accoglie un ambiente living open space, completo di cucina abitabile ed un caldo soggiorno con camino a legna, ideale per le serate invernali. Sempre al piano terra, troviamo un pratico bagno che aggiunge comodità alla zona giorno. La zona esterna è caratterizzata da un ampio terrazzo e da un giardino con accesso dal soggiorno.
Salendo al primo piano, ti attende la zona notte, caratterizzata da due camere da letto. Una di queste è dotata di una moderna cabina armadio ed un balcone con vista Lago oltre ad un bagno ristrutturato nel recentemente, pensato per offrire il massimo del comfort e dell'eleganza.
La mansarda open space è pronta a diventare uno studio, una sala giochi, o qualsiasi spazio tu desideri, completa di servizi ed un'ulteriore cabina armadio.
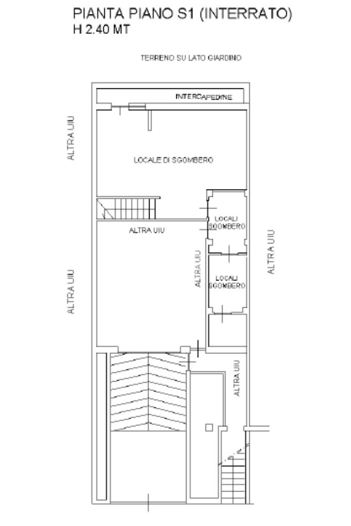
Il piano seminterrato ospita una spaziosa tavernetta completa di angolo cottura e lavanderia. Questo spazio è perfetto per organizzare feste e incontri con amici, creando momenti di gioia e condivisione. Il box auto doppio, con rampa e basculante indipendenti, garantisce tutta la comodità e la sicurezza necessarie per la tua famiglia e i tuoi veicoli.
Non perdere l'occasione di vivere in un ambiente esclusivo e panoramico. Contattaci per scoprire di più e lasciati conquistare dal fascino di questa straordinaria villa.
Ti interessa visionare l'immobile?