 
			 
				Nel cuore del centro storico proponiamo una casa bifamiliare in contesto di corte, con due alloggi indipendenti e un ampio terrazzo di 40 mq che offre una splendida vista paesaggistica.
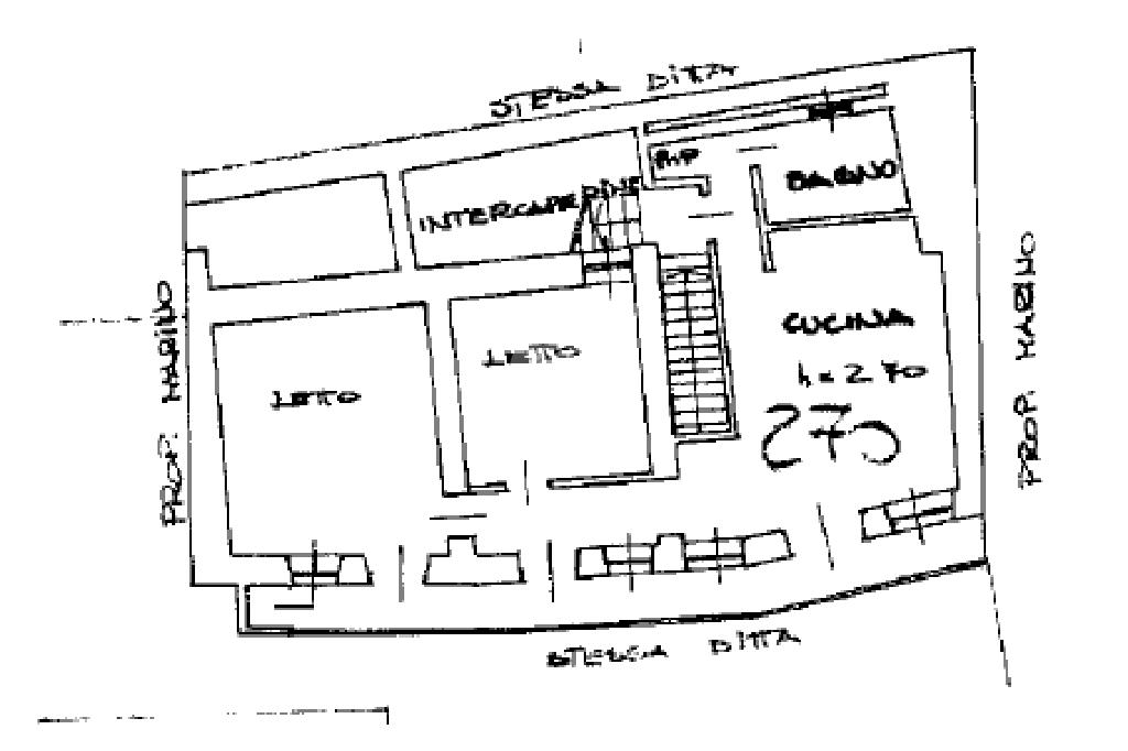
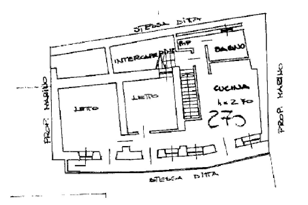
Al primo piano troviamo un alloggio caratterizzato da un ingresso in un'ampia e luminosa cucina abitabile con uscita sul balcone, bagno con box doccia, corridoio che conduce alla zona notte composta da due camere da letto e un secondo bagno. Qui sono presenti infissi in PVC con doppio vetro, che assicurano ottimo isolamento termico e acustico.
Al secondo piano si sviluppa l'altro alloggio, composto da ingresso su disimpegno, soggiorno con cucina e accesso al balcone, due camere da letto e bagno con box doccia. Questo appartamento ha beneficiato del rifacimento completo degli impianti nel 2021.
Entrambi gli alloggi sono dotati di caldaia indipendente a condensazione e di contatori dell'acqua separati.
All'ultimo piano si apre un ampio terrazzo di circa 40 mq che regala una splendida vista sul centro storico di Avigliana, con scorci sul castello e sulla Sacra di San Michele. Qui è stata realizzata una piacevole zona barbecue, affiancata da un locale sgombero utile come deposito.
Al piano terra, invece, trovano spazio una zona lavanderia, una spaziosa cantina, due box auto e un posto auto privato all'interno del cortile.
Una soluzione ideale per famiglie o per chi desidera vivere in una cornice suggestiva, con spazi ben distribuiti e panorami unici.
Ti interessa visionare l'immobile?